Woodcock Road
Tamahere

124E Woodcock Road, Tamahere

$2,590,000

House: 315m2Land: 5,819m2
  • Bedroom4
  • Bathroom2
  • Chair2
  • Garages3

Enquire today

Rochelle Clement

New Home Consultant

Welcome to an exceptional house and land opportunity at 124E Woodcock Road, Tamahere—where modern design meets lifestyle living in one of the Waikato’s most sought-after locations.

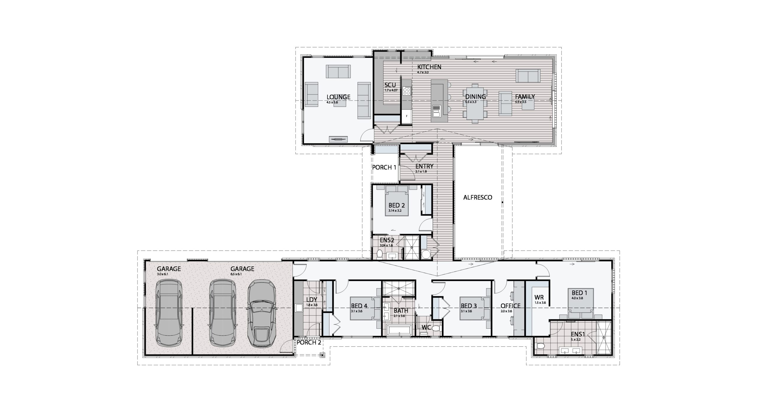
Set on a generous lifestyle section, this substantial 315m² architecturally designed home offers space, flexibility, and premium comfort for modern family living.

Home Features:
Expansive 315m² floor area
Four generous bedrooms, including a luxurious master suite with ensuite and walk-in wardrobe
Dedicated office – perfect for working from home
Multiple living areas for family living and entertaining
Designer kitchen with walk-in pantry and quality appliances
Open-plan living and dining with seamless indoor-outdoor flow
Separate media/lounge room
Triple internal access garage – ideal for extra vehicles, storage, or workshop space
Well-appointed family bathroom plus ensuite and separate WC

Design & Build:
This home showcases a striking combination of brick and vertical cladding, delivering a modern rural aesthetic that compliments its lifestyle setting. Strong gable rooflines and natural textures create a timeless yet contemporary feel.
Large windows and thoughtful orientation maximise natural light and connect the home beautifully to its surroundings.

The Section:
Premium lifestyle site in sought-after Tamahere
Generous land size offering privacy and space
Room for landscaping, outdoor entertaining, pool, or additional shedding
Peaceful semi-rural setting with a relaxed lifestyle feel

Location Highlights:
Easy access to Hamilton City
Close to Tamahere Village, cafés, and local amenities
Zoned for quality schooling options
Enjoy the best of rural living with urban convenience nearby

Why You’ll Love It:
Offering space, style, and versatility, this home is perfect for families, professionals working from home, or those wanting a premium lifestyle property. The addition of a triple garage and dedicated office makes this a standout opportunity in a highly desirable location.

Call Rochelle Clement – New Home Consultant – 021 590 777 to learn more about this premium house and land package and how it can be tailored to suit your needs.


Package Inclusions

  • Council application fees and consents (excluding resource consent)
  • Engineers fees and inspections
  • Plans
  • 1200mm excavation
  • 2 x 25,000 litre semi-buried concrete water tanks with swale for overflow, water pump, trickle feed connection, UV filtration system
  • Oasis Septic tank - PC allowance
  • Foundations and slab on good flat ground
  • Mains three phase power and phone x 70lm
  • 2.55m stud height throughout with scissor truss ceiling to entry, dining & family room
  • Radiata pine wall framing and roof trusses
  • Coloured streel longrun Styleline roofing
  • Continuous coloured steel fascia and spouting
  • Brick/Linea oblique exterior cladding – wide range of colours
  • Insulation to all external walls and ceilings (excludes garage)
  • Gib plaster board throughout to a level 4 paint finish
  • Aqualine to wet areas
  • Double glazed thermally broken aluminium joinery (excludes garage)
  • Coloured steel sectional garage doors with openers (insulated)
  • Resene quality paints inside and out
  • 2.2m internal doors throughout
  • Windsor interior door hardware
  • Laminate flooring to entry, kitchen, scullery, dining & family
  • Solution dyed nylon carpets throughout
  • Ducted air conditioning
  • Melteca cabinetry and stone tops to kitchen
  • Designer shelving systems to all wardrobes and cupboards
  • Pine painted trim - architraves and skirting
  • Square stopped throughout
  • Tiled floors in wet areas
  • Tiled showers to bathroom and ensuite
  • Designer quality bathroom fittings
  • 250 litre hot water cylinder
  • Bosch kitchen appliances
  • LED lighting throughout
  • 250m2 allowance for 8% black oxide concrete driveway
  • 80m2 allowance for 8% black oxide concrete patios areas
  • 10-year Builders Guarantee
  • Full colour consultation
  • Commercial clean upon competition
  • Excludes pool as shown in photo

*Price is subject to final soil report, drainage and engineering
*Package pricing is indicative only and may change without notice
* Images are artist’s impressions and may differ from standard home inclusions


You might also like

Piriti Lane
Horsham Downs

25 Piriri Lane, Horsham Downs, Hamilton

$1,989,000

House: 255m2Land: 5,375m2
  • bedroom4
  • Bathroom2
  • Chair2
  • Garages2

Kupe Drive
Whitianga Waterways
Lot 726

Lot 726, Kupe Drive, Whitianga Waterways

$1,999,000

House: 250m2Land: 700m2
  • bedroom4
  • Bathroom2
  • Chair2
  • Garages2

Haratua Place
Springfield
Lot 2

3A Haratua Place, Springfield, Rotorua

$1,119,500

House: 191m2Land: 1,320m2
  • bedroom4
  • Bathroom2
  • Chair1
  • Garages2

Feeling inspired?
Get in touch to make your build dream a reality.